Cock Lane, High Wycombe, HP13

3 bedroom Bungalow for sale

£650,000

  • 3 bedroom
  • 2 bathroom
  • 2 reception

Key Features

  • A Stunning Three Bedroom Two Bathroom Detached Home
  • Underfloor Heating Throughout, Triple Glazed Windows And Bi Folds
  • Bespoke Fitted Kitchen, Contemporary Fitted Bath & Shower Rooms
  • Landscaped Gardens, Far Reaching Views To Rear, Large Driveway
  • Huge Insulated Garage Ideal For Conversion, Short Drive To Tylers Green
  • Key Information:
  • Council Tax: D
  • Tenure: Freehold

Description

We are delighted to offer for sale this stunning, contemporary, three bedroom, two bathroom, detached family home located on the popular East side of High Wycombe a short drive from Tylers Green. With open plan living at its heart, the property has been painstakingly and lovingly improved and restored to make a unique family home. With such forethought as triple glazed windows, and a heat recovery system all reducing running costs, complimented by high-end sanitary fittings and bespoke fitted kitchen with island and integral appliances. Externally the generously landscaped gardens are enclosed with a large driveway providing parking for several cars leading to a large fully insulated garage, ideal for conversion to a home office. This unique home must be seen to be fully appreciated.

Location Summary

Situated between High Wycombe and Penn in a highly desirable location close to open fields and woodland. Wycombe Retail Park and other shops are approximately half a mile away and cater for all day to day needs. High Wycombe town centre is only 2 miles away and has a regular bus service running along the A40 into the town with a multitude of shopping facilities and train station with mainline into London Marylebone. Access to the M40 London bound can be gained at Junction 3 at Loudwater, just 1 mile away


Location


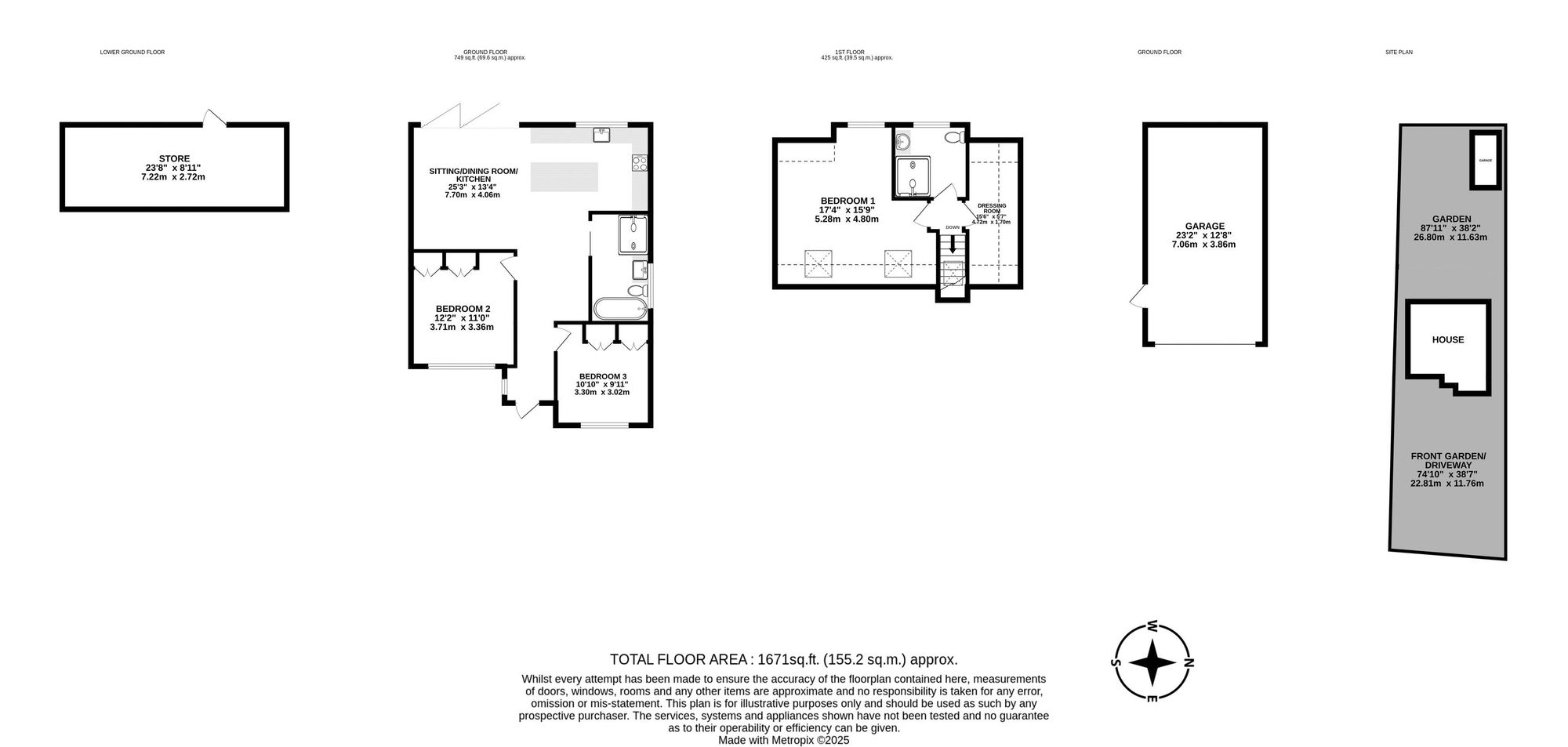
Floorplan

Floorplan

EPC

EPC for Cock Lane, High Wycombe, HP13

High Wycombe Estate Agent

Wye House, 15 Crendon Street, High Wycombe, Buckinghamshire HP13 6LE

We are required, by law, to verify the identity of all purchasers and individuals involved with the financing of a purchase of a property to comply with Anti Money Laundering Regulations. For this purpose we partner with a secure platform called Movebutler and charges are made at the point of completing the verification in the sum of £30 plus VAT per person (£36.00).

Whilst we endeavour to make our sales details accurate and reliable they should not be relied on as statements of representation of fact and do not constitute any part of an offer or contract.

Similar Properties

Coates Lane, High Wycombe, HP13
For Sale

Coates Lane, High Wycombe, HP13

4 Bed House For Sale
Guide price Offers in excess of £700,000